
廢水水量與水質
2.4.1、設計進水水質與水量
項目 | 清洗混合廢水 |
水量(m3/天) | 30m3/天 |
pH值 | 3~9.5 |
COD(mg/L) | ≤50 |
電導率us/cm | ≤3000 |
氟離子(mg/l) | ≤250 |
總氮(mg/l) | ≤350 |
鎳(mg/l) | ≤0.5 |
注:以上數據均來自于乙方分析化驗數據,根據實際檢測如電導率≤2000us/cm, 設計本身考慮30%以上的安全系數,另外以上數據變化不大(調節池足夠大),該系統為零排放設計,數據準確性由乙方負責。
2.4.2、設計回用的水質與水量(設備驗收水質依據)
表2設計回用水指標 | ||
項目 | 回用水 | 說明 |
水量(m3/天) | ≈30m3/天 | 系統預估結晶或濃縮母液量為45kg/天(含水30%計),化學污泥產量約100kg/d(含水70%預估)。
|
pH | 6~8 | |
COD(mg/L) | ≤50 | |
電導率us/cm | ≤500 | |
氟離子(mg/l) | ≤8 | |
水溫(℃) | 20~40℃ | |
注:以上數據均來自于乙方提供給甲方的清洗設備及清洗工藝得出,數據準確性由乙負責。
三、污水處理工藝與主要設備介紹
污水處理工藝的選擇應綜合考慮工程投資、運行管理費用、出水水質要求、操作管理難易、占地面積的大小等多種因素。本污水表面活性劑高,氟離子濃度高、廢水可生化降解性差,且廢水中含有不易好氧生化降解的大分子有機物,同時水量較小,一般的化學生化處理是不適宜的工藝。廢水處理后要求回用,故常規的物化生化工藝不能滿足回用要求。我們根據水量與水質提出如下工藝設備進行處理與回用。
3.1 污水處理工藝流程

3.2 廢水處理設備整體規劃
本項目為了美觀、安裝方便、操作簡單等、除收集槽、中間槽、回用水操外,其他整合為四種撬裝設備。一是撬裝形預處理一體化沉淀+壓濾系統;二是撬裝型節能蒸發器;三是撬裝形活性碳、保安過濾、純化膜集成系統;四是撬裝高效結晶器。
該系統撬裝方式,運輸安裝方便,用戶只需要接入進出水管、電源、空壓源、自來水到設備區域即可正常運行。該系統操作簡單,自動化程度高。
您公司一天的水量多少呢?水量小我公司有一體化設備,降低您的費用成本!點擊在線咨詢按鈕,定制您的專屬方案!
3.3 廢水主要設備簡介
3.3.1 一體化預處理沉淀單元介紹
一體化混凝沉淀設備是將混凝攪拌池和平流式斜管沉淀池設計、制造為一體,集成了加藥、攪拌、沉淀、排泥等多種功能的一體化污水處理設備。本設備針對土建的沉淀池的缺點進行了改進,靈活性高,排泥和檢修方便。一體化混凝沉淀設備分為混凝區、絮凝區、沉淀區三個部分。原水經加藥混凝、絮凝沉淀后,產岀高質量的出水通過池頂集水槽收集排出。
設備特點:
1、結構簡單、無易損件、經久耐用、減少維修
2、運行穩定、容易操作。
3、動力少、節約能源。
4、占地省、投資少、上馬快、效率高。
5、停留時間短,沉淀效果好,處理效率高
6、易于完成自動控制,管理操作簡單。
7、設備可以連接在汽車上做成移動式一體化污水處理設備。
3.3.2 過濾MBR單元介紹
MBR的工作原理:MBR的工作原理主要是利用膜的分離作用將大分子物質進行截留。
我們先看一下廢水中間可能存在的各種污染物:

MBR膜式由不同孔徑的高分子材料組成的一種特殊的化學制品,分別為微濾膜、超濾膜、納濾膜和反滲透膜幾種,下圖就是MBR膜不同孔徑下可以阻隔或截留的各種物質的類型:

其中我們在廢水處理中常用的MBR膜就是超濾膜和微濾膜,兩者能夠將廢水中的一些懸浮物包括部分細菌,超濾膜則可以去掉細菌。納濾膜能夠去掉一些高價態、多價態的離子,反滲透膜在理論上能夠去掉所有的離子,只讓水分子透過,納濾膜和反滲透膜常用于純水的制取。
MBR的主要類型 根據生物反應器的不同類型,可以分為:
好氧膜生物反應器;
厭氧膜生物反應器。
根據膜的不同類型,可以分為:
超濾膜生物反應器(UF,0.01~0.04μm);
微濾膜生物反應器(MF,0.1~0.2μm);
萃取膜生物反應器(選擇透過性)。
根據膜的不同材質,可以分為:陶瓷膜、醋酸纖維(CA)膜、聚砜(PS)膜等。
根據膜的不同結構,可以分為:中空纖維膜、管式膜、平板膜等。
我們著重看一下根據生物反應器與膜單元的不同結合方式進行的分類:
一體式系統

膜組件直接放置在曝氣池中,通過負壓泵將凈化后的水抽出,活性污泥則被截留在曝氣池內。膜組件下方還會設置曝氣裝置,通過氣泡使膜片抖動,來減少活性污泥在膜表面的積累,減少膜污染的形成。

膜組件在曝氣池中一般有三種工作狀態:

1是正常的過濾狀態;
2是反沖洗的狀態;
3是在回流液中添加一些特別的化學藥劑(酸、堿或殺菌劑)對膜進行清洗。
下圖是傳統活性污泥工藝與MBR工藝的對比:

可以看出MBR工藝大大縮短了整個工藝的流程,在MBR膜高效的截留作用下,可以提高曝氣池內活性污泥的濃度,從而提高了曝氣池的處理能力。
所以說一體式MBR系統具有體積小、整體性強、工作壓力小且節能、不易堵塞等優點,但是也存在膜表面流速小、易污染、出水不連續等缺點。
分離式系統

該系統中生物反應器與膜單元相對獨立,兩者之間的干擾比較小。
這種系統中除了采用常規的中空纖維膜之外,還可以采用其他類型的膜組。
隔離式系統

不同類型的水,處理方案都會有細微的區別,我們根據不同項目制定不同解決方案,為您節約成本。點擊在線咨詢按鈕,定制您的專屬方案!
這種系統比較少的應用于大規模項目中,主要使用萃取膜將污水與生物反應器進行隔離,利用萃取膜的選擇透過性,使目標污染物透過,并進入生物反應器進行降解,而有毒有害的物質則被隔離。
MBR的主要特點:MBR膜生物反應器的特點主要都來源于它高效的截留作用:
膜生物反應器的污泥停留時間(SRT)和水力停留時間(HRT)可以完全分開,可以在維持非常短的水力停留時間的同時還能保證非常長的污泥停留時間;
可以使世代較長的硝化菌有時間在生物反應器內生長,從而提高生物脫氮的效果;
與普通的活性污泥相比,可維持很高的混合液懸浮固體濃度(MLSS),可達到12~15g/L;
可以使難降解的大分子物質在反應器內停留更長的時間,使其終得到去除;
通常可以使出水中的懸浮物濃度低至零。
3.3.3 反滲透濃縮純化系統
設備原理說明
反滲透(RO膜系統)是60年代發展起來的一項新的薄膜分離技術,是依靠反滲透膜在壓力下使溶液中的溶劑與溶質進行分離的過程。對于除鹽系統來說,預處理水進入反滲透膜,在高壓力的作用下,小分子(如水分子)透過半透膜進入淡水室,大分子(如 Ca2+、Mg2+、Na+、SO42-、Cl-、HCO3-、HSiO3- 等離子)則留在濃水室,后排放。反滲透系統控制自動控制,根據程序進行過濾產水、加藥、停機沖洗。

反滲透除鹽原理示意圖


反滲透(Reveser Osmosis,簡稱RO)是以壓力為驅動力,并利用反滲透膜只能透過水而不能透過溶質的選擇性而使水溶液中溶質與水分離的技術,因為和自然滲透的方向相反,因此稱為反滲透。其工作壓力很高(1~25MPa)。
反滲透系統配置
RO設置一套3m3/hr產水高倍濃縮與純化反滲透膜,濃縮液設置電導率,通過電導率進行判讀排放時機,確保回收率。反滲透膜采用抗污染RO膜設計。



本系統將活性炭過濾器、保安過濾器、反滲透系統集成在一起,成為一體化純化單元。
3.3.4 反滲透濃縮水節能蒸發器介紹
?設備工作原理
節能蒸發器主要由壓縮機、蒸發罐、加熱器、預熱器、循環泵、不凝氣冷卻單元、監測控制儀表組成。終實現全自動運行的節能蒸發設備。
設備工藝流程動作如下:


①動吸入蒸發器;
②壓縮機中頻運轉,系統進入加熱模式;
③蒸發罐內為-35至55KPA(可設定)負壓條件運行,污水升溫至80-90℃開始沸騰,產生大量水蒸汽。
④80-90攝氏度二次蒸汽被壓縮機升溫到120攝氏度;
⑤120℃壓縮機升溫蒸汽加熱加熱器列管內的污水溫度,從而液化成冷凝水,污水升溫持續循環蒸發。
⑥ 冷凝水不斷排出蒸發系統外,污水得到濃縮,濃縮達到設定倍數,濃縮液自動排出蒸發罐外。
⑦換熱器管中的氣液混合物和循環管側的未沸騰的污水間存在密度差,從而使污水形成循環流動,同時增加強制攪動泵,減少換熱器內壁結垢狀況。
⑧冷凝水排出與進料實現長流程換熱,充分利用熱源,降低系統能耗。
⑨氣擦洗自清潔功能、藥劑清洗列管,維持換熱面清潔,使系統更節能。
產品七大特點
序號 | 特點 |
1 | 系統一鍵啟動、一鍵停止、全自動運行、化學清洗全自動清潔維護列管換熱器 |
2 | 強制循環,減緩列管阻塞 |
3 | 三道防跑料措施+自動泡沫監測與消泡劑添加裝置 |
4 | 旋轉低噪聲壓縮機與變頻控制,特殊設計降噪空間,定制隔音材料四重降噪 |
5 | 不需要蒸汽補充 |
6 | 蒸餾水預熱高效回收技術,蒸餾水預熱利用率90%以上 |
7 | 負壓真空運行,能量循環利用,熱能循環利用次數≥10次 |
產品規格
序號 | 處理能力 | 主體設備尺寸 | 裝機功率 | 壓縮空氣6kg/cm2 | 原液進口 | 產水口 | 不凝氣排口 | 濃水口 |
1 | 1T/d | L2.4*W1.7*H2.8 | 17.5kw | Ф10mm氣管 | DN20 | DN25 | DN25 | DN25 |
2 | 3T/d | L2.5*W1.7*H3.0 | 22kw | Ф10mm氣管 | DN25 | DN25 | DN25 | DN25 |
3 | 5T/d | L2.6*W1.8*H3.2 | 37kw | Ф10mm氣管 | DN25 | DN25 | DN25 | DN25 |
4 | 7T/d | L2.8*W1.8*H3.2 | 55kw | Ф10mm氣管 | DN25 | DN25 | DN25 | DN25 |
注:1. 蒸發結晶器的接液材質可選SUS304/SUS316L/2205/鈦 2. 設備變頻控制,實際噸水能耗在60-120KW/噸水(視物料情況能耗有一定變化差異) | ||||||||
節能蒸發器的應用范圍
重金屬廢水(6#):含HW34廢酸、HW35廢堿、HW16\17\21\22\32重金屬廢液;
乳化液廢水(1#、2#):含HW09切削液、乳化油廢水、染料涂料廢物;
零排放膜系統的濃縮液再蒸發濃縮
研磨、表面活性劑清洗廢水濃縮
垃圾滲透液濃縮等
節能蒸發器在典型應用工藝
| 應用行業:機加工研磨廢水 處理水量:2.5噸/天 蒸發溫度:82攝氏度 進水鹽分:約3500mg/l 進水COD: 約1500mg/l 進水PH:9-11.5 設備回收率:>97.5% 設備冷凝水電導:≤80us/cm 冷凝水COD: ≤50mg/l 噸水能耗:75-90kw/噸水 運行方式:蒸發器全自動無人值守 |
本系統設置一套反滲透濃縮水節能蒸發器,該設備處理能力≥3T/D,系統不需要配置蒸汽發生器、同時設備節能全自動化運行。
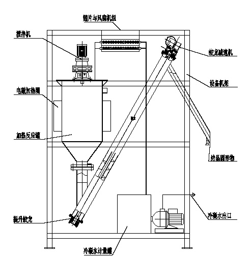
3.3.5蒸發結晶器 設備工作原理 結晶蒸發器主要由進料氣動泵、加熱單元、蒸發反應罐、彈簧刮刀攪拌器、抽風機、冷卻翅片風扇、蛟龍出料裝置、監測控制儀表組成,終實現全自動運行的結晶蒸發器。 設備工藝流程動作如下: 設備工作動作 ①氣動泵進料到蒸發反應罐,并受蒸發反應罐內液位控制; ②電磁加熱圈受蒸發反應罐內溫度控制,進行加熱供熱自動控制模式; ③蒸發罐內蒸發,加熱面采用彈簧刮刀清理結垢,防止物料黏附影響換熱效率。 ④水氣蒸發,二次蒸汽經抽風機引入冷卻翅片風扇,蒸汽冷凝成冷卻水。 ⑤蒸發罐內物料濃縮,開始結晶,結晶物通過提升蛟龍提升到系統外后委外處理。 |
|
產品特點
序號 | 特點 |
1 | 系統一鍵啟動、一鍵停止、全自動運行 |
2 | 加熱壁刮板清理,清理物掉落至蒸發槽底部自動清理 |
3 | 電磁加熱快速,啟動時間短 |
4 | 適用于小水量蒸發 |
5 | 不需要蒸汽補充 |
產品規格
序號 | 處理能力 | 主體設備尺寸 | 裝機功率 | 壓縮空氣6kg/cm2 | 原液進口 | 產水口 | 不凝氣排口 | |
1 | 150L/D | L1.4*W1.2*H2.2 | 5.75kw | Ф10mm氣管 | DN20 | DN20 | DN40 | |
2 | 300L/D | L1.6*W1.4*H2.4 | 11kw | Ф10mm氣管 | DN25 | DN20 | DN50 |
注:該產品適用于節能蒸發器母液再處理,設備投資小,運行穩定,無需蒸汽,設備操作簡單,自動化程度高。
水處理方案的費用,會根據項目不同,材料不同,是否源廠,來水水質,甲方項目實地面積,等等都有區別。需要通過多家方案綜合對比后決定。點擊下面撥打電話或咨詢按鈕,獲取您的專屬方案!